Чи витримає депутатська більшість Рівнеради тест на совість на найближчій сесії?
Тест на служіння громаді та наявність совісті депутатської більшості Рівнеради або чи пройде нова схема роздачі землі на найближчій сесії.
На найближчій сесії Рівнеради вирішуватиметься питання, яке може вплинути не лише на наповнення бюджету, привабливість аукціонів, але й на те чи спроможна більшість діяти насамперед в інетересах громади.
Йдеться про потенційний продаж ділянок на вулиці Чорновола, навпроти АТБ, на перший погляд через прозорий аукціон. Але чи справді це вигідно для громади, чи вигідно лише для окремої особи?
Хронологія подій: 13 червня на бюджетній комісії розглядалося питання продажу цієї землі. Аукціон, як відомо, – це прозорий і конкурентний спосіб залучення інвесторів. Спочатку все виглядало стандартно: депутати проголосували за, без зайвих питань. Проте, колега Сергій Васильчук, звернув увагу на незвичні форми і розміри ділянок, що викликало сумніви.
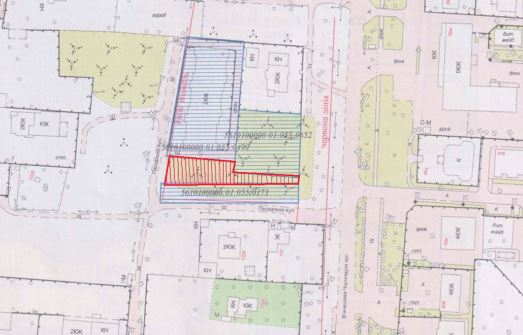
Згодом, вивчивши графічні матеріали, я побачив наступне: громадянин звернувся до міської ради з проханням виставити на аукціон ділянку на
вулиці В’ячеслава Чорновола площею 194 м² для будівництва і обслуговування багатоквартирного житлового будинку (питання № 39 порядку денного сесії 22.08.24). Того ж дня цей самий громадянин подав ще одну заяву на продаж сусідньої ділянки площею 598 м² під паркінги та стоянки (питання № 40 порядку денного).
На перший погляд, все в межах закону. Але коли я уважніше проаналізував ситуацію, стало зрозуміло, що ці ділянки є суміжні, а продаж їх окремо не має сенсу з точки зору інтересів громади.


Я переконав колег, що продаж цих ділянок окремо – це помилка. Краще було б об’єднати їх в одну ділянку і продати одним лотом, що підвищить привабливість для покупців і принесе більше користі громаді.
На бюджетній комісії 16 серпня 2024 року депутати, на жаль, не підтримали рішення про спільний продаж, але дякую тим колегам, які підтримали резолюцію комісії, щоб винести це питання на розгляд сесії.
Я підготував письмову пропозицію, щоб цей проект був включений до порядку денного. Це дає шанс, що депутати відхилять питання № 39 і 40 та підтримають новий проект рішення про об'єднану ділянку.
Чому це важливо? Виставлення однієї ділянки майже 7 соток на аукціон значно підвищить її привабливість. Це пряма можливість для громади отримати більше коштів від продажу та залучити серйозних інвесторів для розвитку міста. Прямий вихід на вулицю Чорновола робить цю ділянку ще більш цінною.
Можливі сценарії на сесії 22.08.2024:
-
Варіант 1: Питання 39 і 40 набирають 22 голоси, і ми маємо два окремі аукціони. У результаті громада втрачає можливість отримати максимальну вигоду. Це буде провалом тесту на совість депутатів.
-
Варіант 2: Питання 39 і 40 відхиляються, і депутати підтримують новий проект з об'єднаною ділянкою. Це рішення буде свідченням їхньої відповідальності перед громадою.
-
Варіант 3: Питання знімають з розгляду, що лише затягує рішення і відкладає питання на невизначений термін.
-
Варіант 4: Депутати знайдуть інший, можливо, неочікуваний вихід з ситуації...
Ось чому важливо, як кожен депутат голосує на сесії за ключові питання громади: кожне рішення, яке ухвалюють 22 депутати, безпосередньо впливає на майбутнє міста.
Коли йдеться про такі важливі питання, як розпорядження землею, відданість депутатів служінню громаді та їхня здатність діяти в інтересах всіх, а не лише окремих осіб, стають очевидними.
Виборці мають право знати, хто стоїть на захисті їхніх інтересів, а хто піддається спокусі.
Голосування на найближчій сесії стане тестом на справжнє служіння громаді і важливо, щоб ЗМІ проінформували громаду про цей тест.
Коментарі
Прокоментуйте
Щоб залишити коментар необхідно увійти